発寒10条4丁目 モデルハウス
札幌市西区発寒10条4丁目1-56(住居表示)
JR函館本線「発寒中央」駅徒歩3分
■JR駅まで徒歩3分の好立地
■2025年5月完成のGATEモデルハウス
■注文住宅実績6000棟以上の「ジョンソンホームズ」施工
■性能×デザイン×コスパを実現する新たな戸建住宅
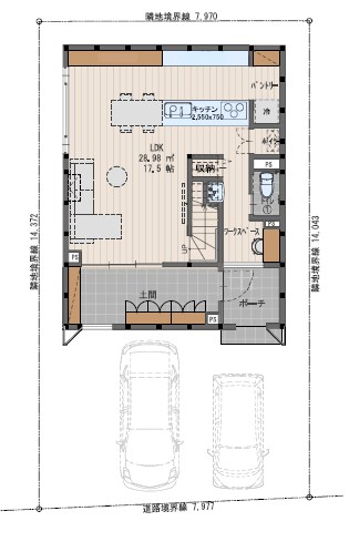
■玄関には約5.1帖の土間、1.8帖のワークスペースあり
■建物前面には2台分の駐車スペースあり
■キッチンには大容量のパントリー
■浴室は1坪タイプでフルオートバス機能付き
■設計・施工・販売・アフターまで自社一貫体制、
住んでからのアフターフォローも充実
■安心をお届けする各種保証制度
■基礎断熱・玄関暖房・断熱高性能窓を標準装備!
■2025年5月完成のGATEモデルハウス
■注文住宅実績6000棟以上の「ジョンソンホームズ」施工
■性能×デザイン×コスパを実現する新たな戸建住宅
■玄関には約5.1帖の土間、1.8帖のワークスペースあり
■建物前面には2台分の駐車スペースあり
■キッチンには大容量のパントリー
■浴室は1坪タイプでフルオートバス機能付き
■設計・施工・販売・アフターまで自社一貫体制、
住んでからのアフターフォローも充実
■安心をお届けする各種保証制度
■基礎断熱・玄関暖房・断熱高性能窓を標準装備!
物件価格 4,980万円
物件概要 DATA
-
土地面積
113.23㎡(34.25坪)
-
建築面積
1階:52.17㎡ 2階:40.58㎡
合計:92.75㎡ -
築年数
2025年5月築(未入居)
-
階数/構造
木造2階建て
-
接面状況
東側公道18.1mに約7.9m接道
-
建ぺい率
60%
-
容積率
200%
-
地域地区
第一種住居地域
-
土地権利
所有権
-
現況
空家
-
引渡し
相談
-
取引態様
仲介
お問い合わせ Contact
「不動産売却について」「不動産買取について」「当社について」など、
お困りごとがございましたら何でもご相談ください。